Piso en venta

Granollers
269.990 €
4 dormitorios 4 dormitorios
84 m2 84 m2
2 baños 2 baños

Piso en venta

Granollers

Descripción anuncio

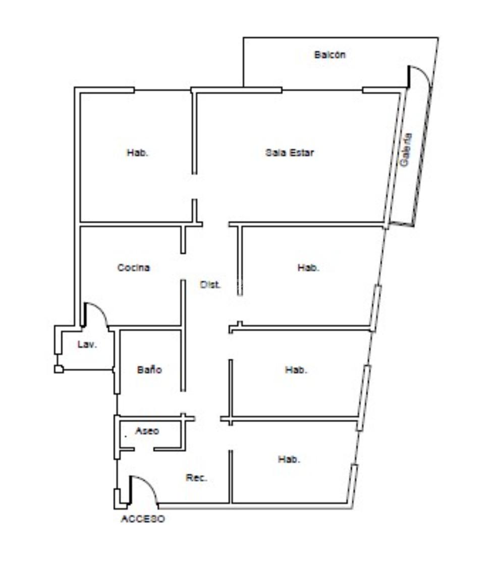
Piso luminoso en el pleno centro de Granollers. Consta de 84 m2 distribuidos en 4 habitaciones (2 dobles y 2 individuales), 2 baños (1 baño completo y otro de cortesía), cocina amplia con galería y salón-comedor con salida a balcón, ideal para disfrutar de vistas despejadas. Finca con ascensor y trastero.

Ubicada en pleno centro de Granollers, a solo 15 minutos todos los servicios, comercios y transporte público a pocos pasos.

En Tecnocasa, junto a nuestros asesores financieros de la red Kìron, te ayudamos a encontrar la hipoteca que mejor se adapte a ti.

¡No dejes escapar esta oportunidad! Contacta con nosotros y ven a visitarlo.

Ver más

Características

Ref.:
647425
Planta:
7 (Planta ático)
Aire acondicionado:
Independiente (Frío / Calor)
Calefacción:
Independiente (Gas)
Libre:
No
Tipo de inmueble:
Popular
Ver más
Precio Precio
269.990 €
Cuota mensual Cuota mensual
€ 870 / mes

Clase energética

G
G
G
G
G
G
G
G
G
Consumo de energia:
253 kWh/m² año
Emisiones:
53 Kg CO2/m² año
Año de construcción:
1971

Servicios cercanos

Transporte público Transporte público
Granollers Centre
Granollers Centre
170 m
Granollers - Canovelles
Granollers - Canovelles
1,6 Km
Estació de França - Marquesina A
Estació de França - Marquesina A
100 m
Estació de França - Marquesina C
Estació de França - Marquesina C
120 m
Colegios Colegios
CTUG
440 m
Escola Pia
460 m
Institut Carles Vallbona
580 m
Escola Ferrer i Guàrdia
620 m
Business School Penta Learning
640 m
Farmacias Farmacias
Farmàcia Bonet Vila, Josep M.
100 m
Farmàcia Bellavista
260 m
Farmàcia Dalmau
370 m
Farmàcia Pou
460 m
Farmàcia M. Teresa Blasi Gutierrez
660 m
Hospitales Hospitales
Fundació Hospital Asil de Granollers
1,5 Km
Hospital-Asil de Granollers
1,5 Km
Supermercados Supermercados
Mercadona
30 m
Consum
270 m
Carrefour
720 m
Aldi
1,0 Km
Lidl
1,1 Km
Tiendas Tiendas
MacxiPa
220 m
Granollers Supermercat
270 m
Forn de pa Rius
270 m
Productes Alimentaris La Perla
360 m
Uniformes Gourmet
560 m
Bar Bar
Cervesa Sobre Tot
390 m
El Piano
420 m
Ca l’espinasa
600 m
Shibalu
630 m
Alicia's Bar
640 m
restaurantes restaurantes
El localet
440 m
Il Cenacolo
510 m
Anònims
620 m
Restaurantes
660 m
ARI-SOR
660 m
Ver más

Calcula tu hipoteca

Simple y sin compromiso
Entrada
%
al mes
Hipoteca
%
El resultado de esta simulación es orientativo. Los datos indicados no corresponden a condiciones reales de productos y no implican compromiso, obligación o vínculo jurídico-legal para el Grupo Tecnocasa.

Solicita un asesoramiento

Introduce tus datos
GRACIAS POR CONTACTAR CON NOSOTROS.
Esta oficina de Kìron se pondrá en contacto contigo lo antes posible para ofrecerte un asesoramiento financiero más completo y acorde a la información que nos has facilitado.
Franquiciado
Estudi Nova Ripollet Slu
Rambla Sant Esteve, 20 Local 08291 Ripollet (B)
Rambla Sant Esteve, 20 Local 08291 Ripollet (B) Zona: RIPOLLET
DE LUNES A VIERNES DE 10:00 A 14:00 Y DE 16:30 A 20:30 . SÁBADOS DE 10:00 A 14:00 Y DE 17:00 A 20:00. DOMINGOS Y FESTIVOS PREVIA CITA

Nuestro equipo


  • Edgar Martinez
    Franquiciado

  • Luis Uziel Castro Palma
    Colaborador

  • Eric Fernandez Manzano
    Colaborador

  • David Lopez Arroyo
    Colaborador

  • Artur Badrutdinov
    Colaborador
Franquiciado
Estudi Nova Ripollet Slu
Rambla Sant Esteve, 20 Local 08291 Ripollet (B)

Franquiciado
Estudi Nova Ripollet Slu
Franquiciado
Estudi Nova Ripollet Slu

2026 Ibero Group Tecnocasa Services, S.L.U. - CIF B-65870776 - C/ Pallars, nº 1-3 Parque de Negocios Mas Blau II, 08820, El Prat de Llobregat (Barcelona-España). Red en franquicia - Cada sociedad franquiciada tiene su propio titular y es independiente del franquiciador.

Política de privacidad | Aviso legal | Pólitica de las Cookies | Información al consumidor | | Canal ético